3D Rez profilom

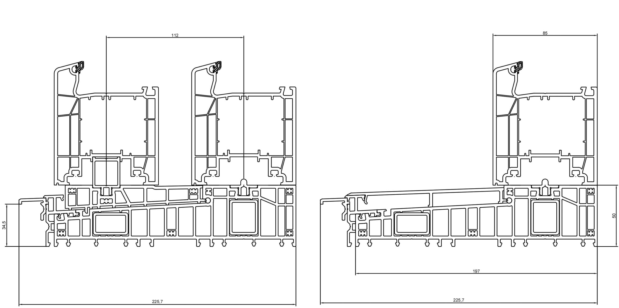
HST 85

  • panoramatický výhľad vďaka veľkým preskleným plochám,
  • pohodlné a plynulé prepojenie interiéru s terasou,
  • zdvižno-posuvný systém (HST) pre ľahkú manipuláciu,
  • tri voliteľné konfigurácie podľa vašich požiadaviek,
  • možnosť výroby nadštandardných rozmerov konštrukcie.

HST 85

JEDEN SYSTÉM – TRI RIEŠENIA

  • Nový dverný systém HST 85 mm je na jednej strane reakciou na očakávania vytvárať čoraz väčšie okenné konštrukcie. Na druhej strane vďaka konštrukčným zmenám a predovšetkým možnosti použitia širších zasklení s hrúbkou až 51 mm umožňuje dosiahnuť nadpriemerné tepelnoizolačné vlastnosti. Novinkou v tomto segmente je modulárny charakter konštrukcie, ktorý umožňuje tri konfigurácie produktu v závislosti od požadovaných tepelných parametrov.
  • Ideálnym riešením pre tých, ktorí hľadajú pohodlné prepojenie interiéru s terasou a zároveň si chcú užívať panoramatický výhľad vďaka veľkej presklenej ploche, sú zdvižno-posuvné dvere HST 85 mm. Kľúčovou výhodou tohto typu terasových dverí sú flexibilné dostupné rozmery.

Zdroj obsahu: MONOLIT