3D Rez profilom

IDEAL 7000

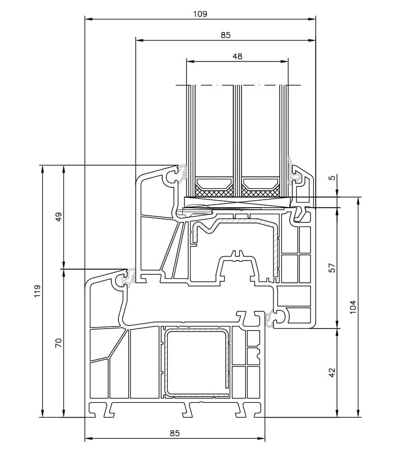
  • 6-komorový systém,
  • stavebná hĺbka 85 mm,
  • systém s vonkajším tesnením (2 tesnenia),
  • klasický dizajn krídla (classic-line),
  • trieda odolnosti proti vlámaniu RC2,
  • súčiniteľ Uw = 0,79 W/m²K (pre referenčné okno s rozmermi 1230 x 1480 mm, Ug = 0,5 W/m2K),
  • štandardný zvar V-Perfect.

IDEAL 7000

MODERNÁ ARCHITEKTÚRA

  • IDEAL 7000 je príkladom synergického využitia vlastností profilov a izolačných skiel s cieľom vytvárať okná, ktoré sa vyznačujú veľmi nízkym súčiniteľom prestupu tepla. Hodnota súčiniteľa prestupu tepla profilov Uf = 1,1 až 1,0 W/m²K dosiahnutá v testoch, v kombinácii s možnosťou použitia širších a teplejších zasklení, zaručuje najlepšie tepelnoizolačné parametre okna.

Zdroj obsahu: MONOLIT