IDEAL NEO MD
IDEAL NEO MD
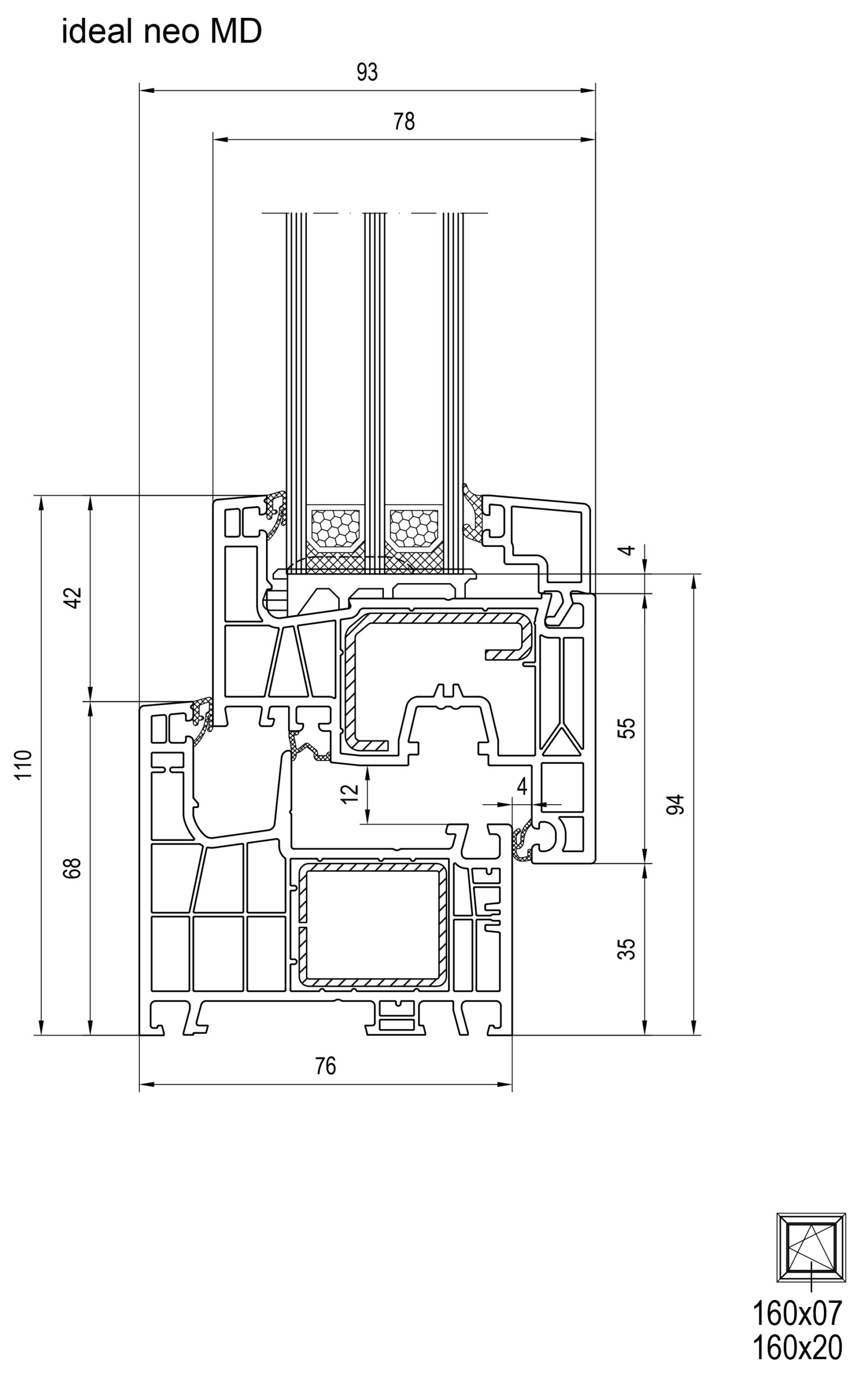
- • 6-komorový systém,
- • stavebná hĺbka 76 mm,
- • systém s vonkajším tesnením (3 tesnenia),
- • jednoduchý, symetrický, kubistický tvar a vizuálna ľahkosť konštrukcie,
- • úzke, výrazné drážky,
- • klasické stredové tesnenie – lepšia ochrana proti vlámaniu,
- • súčiniteľ prestupu tepla Uw = 0,76 W/m²K (pre referenčné okno s rozmermi 1230 x 1480 mm, Ug = 0,5 W/m²K).
IDEAL NEO MD
JEDNODUCHÉ ŠTRUKTÚRY A MINIMALISTICKÝ DIZAJN
- IDEAL NEO MD je mimoriadne atraktívnou dizajnovou voľbou pre zákazníkov, ktorí si cenia nadčasový štýl. Jednoduchý, symetrický, kubistický tvar je charakteristickým znakom okien vyrobených s použitím tohto systému.
- Systém IDEAL NEO MD bol inšpirovaný štýlom Bauhaus, ktorý kedysi spôsobil revolúciu v architektúre. Jednoduchý a krásny dizajn pre každého. Poskytuje dostatok svetla a bezproblémové prepojenie medzi interiérovými a exteriérovými prvkami.
Zdroj obsahu: MONOLIT
Štandardné farby ALUPLAST
* Štandardné farby ALUPLAST s dlhšou dodacou lehotou 4 týždne.
Zdroj obsahu: MONOLIT