INTERTEC 85
INTERTEC 85
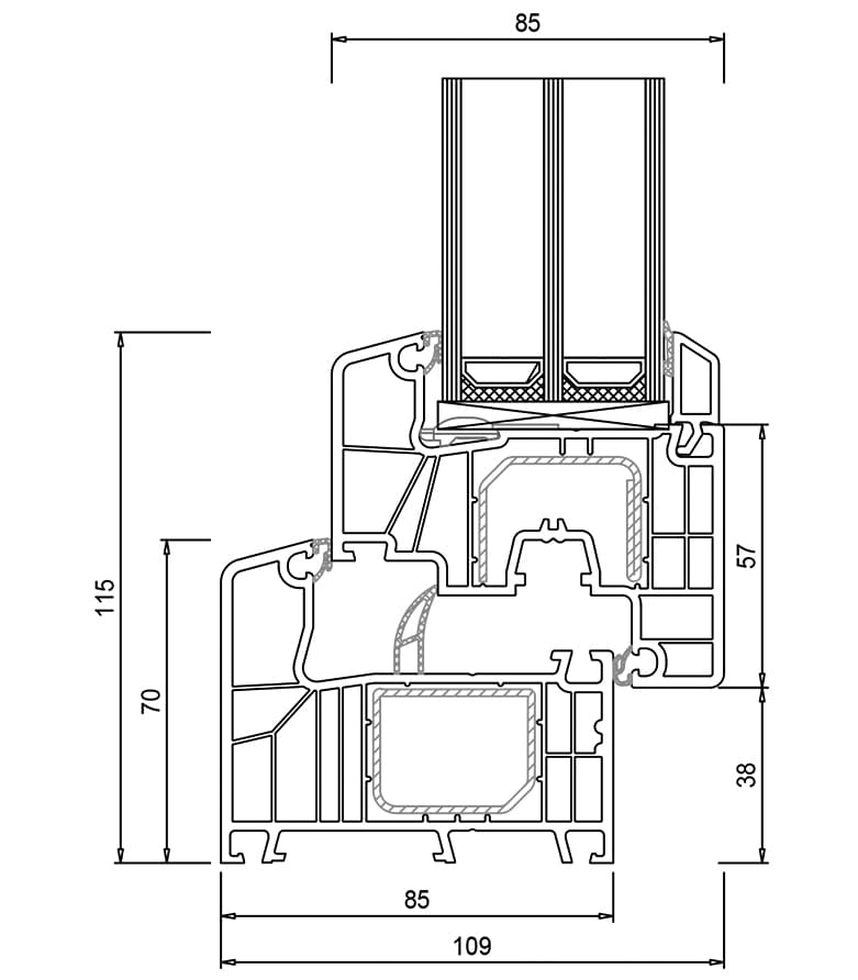
- • 7-komorový systém,
- • stavebná hĺbka 85 mm,
- • systém so stredovým tesnením (3 tesnenia),
- • klasický dizajn krídla (classic-line nezarovnaný),
- • dostupné v mnohých farebných prevedeniach,
- • súčiniteľ prestupu tepla Uw = 0,76 W/m²K (pre referenčné okno s rozmermi 1230 x 1480 mm, Ug = 0,5 W/m²K),
- • štandardný zvar V-Perfect, kovanie ROTO NX.
INTERTEC 85
MODERNÝ SYSTÉM OKENNÝCH PROFILOV
- Aluplast Intertec 85 je pokročilý systém okenných profilov, ktorý vďaka použitiu inovatívnych riešení ponúka vynikajúce technické parametre a vysoký komfort používania okien.
- Systémové profily sa vyznačujú klasickým dizajnom s vyváženými proporciami, ktoré dokonale zapadajú do súčasných trendov.
Zdroj obsahu: MONOLIT
Štandardné farby ALUPLAST
* Štandardné farby ALUPLAST s dlhšou dodacou lehotou 4 týždne.
Zdroj obsahu: MONOLIT